| 59242/95滚针轴承、39242/100滚针轴承、39242/105滚针轴承、39244/110滚针轴承 |
|
|

|
轴径 |
轴承型号 |
重量 |
外形尺寸 |
额定负荷 |
极限转速 |
|
Bearing Designation |
Mass |
BoundaryDimensions |
BasicLoadRating |
Limiting Speed |
|
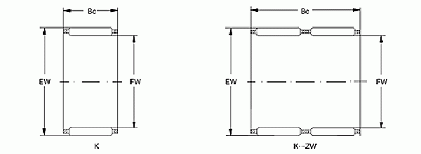
Shaft |
现型号 |
原型号 |
Approx |
Fw |
EW |
BC |
动 |
静 |
油润滑 Oil |
|
CurrentCode |
OriginalCode |
Dynamic |
Static |
|
mm |
g |
mm |
N |
rpm |
|
60 |
K60x65x20 |
49241/60 |
50.5 |
60 |
65 |
20 |
29000 |
71500 |
6000 |
|
K60x65x30 |
69241/60 |
71.2 |
60 |
65 |
30 |
42000 |
115500 |
6000 |
|
K60x68x20 |
19243/60 |
79 |
60 |
68 |
20 |
43000 |
84500 |
5500 |
|
K60x68x23 |
|
94 |
60 |
68 |
23 |
49000 |
100500 |
5500 |
|
K60x68x25 |
29243/60 |
97 |
60 |
68 |
25 |
52500 |
110500 |
5500 |
|
K60x68x27 |
|
98 |
60 |
68 |
27 |
59000 |
120500 |
6000 |
|
K60x75x42 |
|
240 |
60 |
75 |
42 |
11300 |
19200 |
5500 |
|
K60x66x33ZW |
|
104 |
60 |
66 |
33 |
45500 |
111500 |
6000 |
|
K60x66x40ZW |
|
116 |
60 |
66 |
40 |
57500 |
150500 |
5500 |
|
K60x68x30ZW |
|
136 |
60 |
68 |
30 |
44000 |
87500 |
5500 |
|
K60x68x34ZW |
|
140 |
60 |
68 |
34 |
47500 |
95500 |
5500 |
|
62 |
K62x70x40ZW |
|
147.5 |
62 |
70 |
40 |
65500 |
145500 |
5500 |
|
63 |
K63x70x21 |
|
75 |
63 |
70 |
21 |
45000 |
100500 |
5500 |
|
64 |
K47x70x16 |
|
53 |
64 |
70 |
16 |
27500 |
59500 |
5500 |
|
65 |
K65x70x20 |
49241/65 |
49 |
65 |
70 |
20 |
30000 |
76500 |
5500 |
|
K65x70x30 |
|
83 |
65 |
70 |
30 |
43500 |
93500 |
5500 |
|
K65x73x23 |
|
100 |
65 |
73 |
23 |
45500 |
93500 |
5000 |
|
K65x73x30 |
39243/65 |
126 |
65 |
73 |
30 |
56500 |
122500 |
5000 |
|
68 |
K68x74x20 |
49241/68 |
65 |
68 |
74 |
20 |
35000 |
83500 |
5000 |
|
K68x74x30 |
69241/68 |
97 |
68 |
74 |
30 |
46000 |
117500 |
5000 |
|
K68x74x35 ZW |
79241/68 |
116 |
68 |
74 |
35 |
48000 |
124500 |
5000 |
|
K68x75x20 |
|
120 |
68 |
75 |
32 |
53500 |
127500 |
4500 |
|
70 |
K70x76x20 |
49241/70 |
70 |
70 |
76 |
20 |
35500 |
85500 |
4500 |
|
K70x76x30 |
69241/70 |
100 |
70 |
76 |
30 |
51500 |
138500 |
4500 |
|
K70x78x25 |
29243/70 |
115 |
70 |
78 |
25 |
51500 |
111500 |
4500 |
|
K70x78x30 |
39243/70 |
136 |
70 |
78 |
30 |
59500 |
134500 |
4500 |
|
K70x80x30 |
29244/70 |
150 |
70 |
80 |
30 |
72500 |
147500 |
4500 |
|
K70x78x46 ZW |
|
230 |
70 |
78 |
46 |
77500 |
18800 |
4500 |
|
72 |
K72x80x20 |
19243/72 |
94 |
72 |
80 |
20 |
41000 |
84500 |
4500 |
|
73 |
K73x79x20 |
|
69 |
73 |
79 |
20 |
36500 |
99500 |
4500 |
|
75 |
K75x81x20 |
49241/75 |
72 |
75 |
81 |
20 |
37000 |
93500 |
4500 |
|
K75x81x30 |
69241/75 |
106 |
75 |
81 |
30 |
51500 |
142000 |
4500 |
|
K75x83x23 |
|
113 |
75 |
83 |
23 |
49500 |
108000 |
4000 |
|
K75x83x30 |
39243/75 |
147 |
75 |
83 |
30 |
91500 |
142000 |
4000 |
|
K75x83x35 ZW |
49243/75 |
165 |
75 |
83 |
35 |
62500 |
146500 |
4000 |
|
K75x83x40 ZW |
59243/75 |
190 |
75 |
83 |
40 |
72500 |
176500 |
4000 |
|
80 |
K80x86x20 |
49241/80 |
76 |
80 |
86 |
20 |
38000 |
97500 |
4000 |
|
K80x86x30 |
69241/80 |
114 |
80 |
86 |
30 |
55500 |
158500 |
4000 |
|
K80x88x30 |
39243/80 |
141 |
80 |
88 |
30 |
71500 |
178500 |
4000 |
|
K80x88x40 ZW |
59243/80 |
204 |
80 |
88 |
40 |
75500 |
191500 |
4000 |
|
K80x88x46 ZW |
69243/80 |
235 |
80 |
88 |
46 |
87500 |
23000 |
4000 |
|
85 |
K85x92x20 |
29241/85 |
96 |
85 |
92 |
20 |
44000 |
107500 |
3500 |
|
90 |
K90x97x20 |
29241/90 |
103 |
90 |
97 |
20 |
44500 |
112500 |
3000 |
|
K90x98x27 |
|
150 |
90 |
98 |
27 |
60500 |
149500 |
3000 |
|
K90x98x30 |
39242/90 |
172 |
90 |
98 |
30 |
67500 |
171500 |
3000 |
|
95 |
K95x102x20 |
29241/95 |
110 |
95 |
102 |
20 |
45500 |
122500 |
2900 |
|
K95x103x30 ZW |
39242/95 |
177 |
95 |
103 |
30 |
68500 |
179500 |
2900 |
|
K95x103x40 ZW |
59242/95 |
250 |
95 |
103 |
40 |
82500 |
227500 |
2900 |
|
100 |
K100x107x21 |
|
120 |
100 |
107 |
21 |
47500 |
126500 |
2700 |
|
K100x108x27 |
|
176 |
100 |
108 |
27 |
56500 |
142500 |
2700 |
|
K100x108x30 |
39242/100 |
190 |
100 |
108 |
30 |
70500 |
187500 |
2700 |
|
105 |
K105x112x21 |
|
123 |
105 |
112 |
21 |
47000 |
126500 |
2500 |
|
K105x113x30 |
39242/105 |
198 |
105 |
113 |
30 |
71500 |
196500 |
2500 |
|
110 |
K110X117X24 |
|
146 |
110 |
117 |
24 |
55500 |
157500 |
2300 |
|
K110X118X30 |
39244/110 |
217 |
110 |
118 |
30 |
77500 |
218500 |
2300 |
|
115 |
K115X123X27 |
|
200 |
115 |
123 |
27 |
63 |
170 |
4100 |
|
K115X125X35 |
|
|
115 |
125 |
35 |
63 |
170 |
4100 |
|
K115X125X40 |
|
|
115 |
125 |
40 |
65 |
175 |
4100 |
|
120 |
K120X127X24 |
|
165 |
120 |
127 |
24 |
59 |
174 |
4000 |
|
125 |
K125X133X35 |
|
275 |
125 |
133 |
35 |
86 |
260 |
3800 |
|
130 |
K130X127X24 |
|
170 |
130 |
137 |
24 |
61 |
186 |
3700 |
|
145 |
K145X153X26 |
|
262 |
145 |
153 |
26 |
74 |
225 |
3300 |
|
155 |
K155X163X26 |
|
265 |
155 |
163 |
26 |
75 |
236 |
3100 |
|
160 |
K160X170X46 |
|
550 |
160 |
170 |
46 |
152 |
510 |
3000 |
|
165 |
K165X173X26 |
|
320 |
165 |
173 |
26 |
81 |
265 |
3000 |
|
175 |
K175X183X32 |
|
400 |
175 |
183 |
32 |
99 |
350 |
2700 |
|
185 |
K185X195X37 |
|
607 |
185 |
195 |
37 |
128 |
425 |
2600 |
|
195 |
K195X205X37 |
|
620 |
195 |
205 |
37 |
133 |
450 |
2500 |
|
210 |
K210X220X42 |
|
740 |
210 |
220 |
42 |
154 |
560 |
2300 |
|
220 |
K220X230X42 |
|
790 |
220 |
230 |
42 |
158 |
590 |
2200 |
|
240 |
K240X250X42 |
|
850 |
240 |
250 |
42 |
164 |
630 |
2000 |
|
265 |
K265X280X50 |
|
1810 |
265 |
280 |
50 |
255 |
860 |
1800 |
|
|
|
|