|
|
| YRT1030转台轴承详细参数 |
|
 | 生产厂家: | 南京哈宁轴承制造有限公司 |
| |  | 公司地址: | 江苏省南京市莫愁路195号 |
| |  | 联系电话: | 025-86629730 |
| |  | 公司传真: | 025-52300551 |
| |  | 联 系 人: | 刘长岭 |
| |  | 联系邮件: | lcl@8767.com |
| |  | 产品规格: | YRT1030转台轴承详细参数 |
| |  | 产品价格: | ¥.00 |
| |  | 网上报价: | ¥.00 |
| |
|
|
|
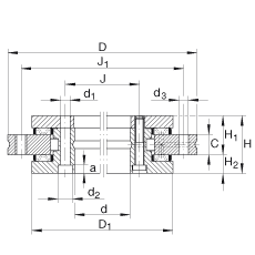
YRT1030 |
|
d |
1030 mm |
|
|
D |
1300 mm |
|
|
H |
145 mm |
|
|
1) |
|
定位螺栓 |
|
a |
17 mm |
内圈上的固定孔 |
|
C |
40 mm |
|
|
D1 max |
1215 mm |
|
|
d1 |
18 mm |
内圈上的固定孔 |
|
d2 |
26 mm |
内圈上的固定孔 |
|
d3 |
18 mm |
外圈上的固定孔 |
|
G |
M16 |
退卸螺丝 |
|
H1 |
92.5 mm |
|
|
H2 |
52.5mm |
|
|
J |
1075 mm |
内圈上的固定孔 |
|
J1 |
1255 mm |
外圈上的固定孔 |
|
nG |
6 |
退卸螺丝的数量 |
|
nHS |
12 |
固定螺丝的数量 |
|
nSa |
66 |
外圈上固定孔的数量 |
|
nSi |
60 |
内圈上固定孔的数量 |
|
t |
72 X 5° |
节圆的数量 X 螺旋角 |
|
|
|
包括紧定螺栓和螺纹退卸孔 |
|
m |
375 kg |
质量 |
|
MA |
284 Nm |
螺栓紧固力矩 |
|
Ca |
1080000 N |
基本额定动载荷,轴向 |
|
C0a |
11000000 N |
基本额定静载荷,轴向 |
|
Cr |
620000 N |
基本额定动载荷,径向 |
|
C0r |
2650000 N |
基本额定静载荷,径向 |
|
nG |
35 1/min |
极限速度 |
|
MRL |
800 Nm |
轴承摩擦力矩 |
|
caL |
11200 N/μm |
轴向刚度 |
|
crL |
16000 N/μm |
径向刚度 |
|
ckL |
1900000 Nm/mrad |
倾斜刚度 | | |
|
|
|
|
|
|